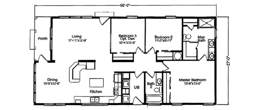
Sunset Bay
- 1444 sq. ft.
- 2 Bedrooms
- 2 Bathrooms
Fantastic curb appeal! High, coffered ceilings and loads of windows greet you from the covered porch. A chef’s dream kitchen boasts an eating bar, island, and ample cupboards. This model has all the perks!
 
				 
                                     
                                     
                                     
                                     
                                     
                                     
                                     
                                     
                                     
                                     
                                     
                                     
                                    