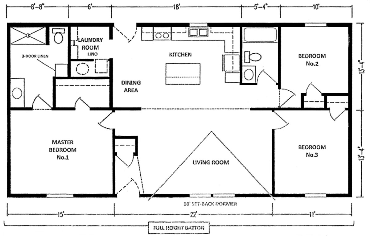
House #2: Open Rambler

  • 1286 sq. ft.
  • 3 bedrooms/ 2 baths
  • Open concept home

Additional features include:

  • Bright kitchen with white shaker cabinets and crown molding
  • Attractive wood grain vinyl in kitchen and laundry room
  • Always appreciated coat closet
  • Master bedroom with walk in closet
  • 60” walk in shower in master bath