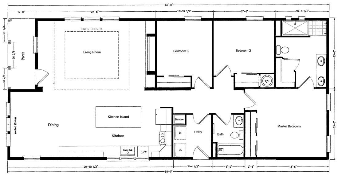
House #9 Sunset Bay II

  • 1564 sq. ft.
  • 3 bedrooms  &  2 bath
  • Gourmet kitchen with extra large island, counters galore , full height tile backsplash and  farmhouse kitchen sink
  • Upgraded cabinets throughout w/soft close doors and drawers, (8) pull out shelves in base cabinets.
  • Upgrade Stainless Steel Appliance package
  • Living room with gorgeous Electric Fireplace w/Media Center & 3 large windows
  • Coffered Tower dormer w/Trey Ceiling + (4) Can lights in corners of Trey
  • Spa Tile Shower Master Bathroom w/double sinks
  • 36" interior doors throughout
  • Energy Star Rated home R-40 Ceiling , R-21 ext walls, R-38 floor
  • Craftsman style with an inviting covered front porch